• 恒氧 恒湿 洁净 节能
• 双向流结合技术,除湿新风同步进行
• 超薄均质透湿薄膜,高效传质导热
• 强力除菌的同时,0增量臭氧
• 高效吸音降噪材料,更轻音
采用正压送风的形式,将室外空气净化、除湿处理后,通过送风管道送入各个房间,保证室内空气的干爽与洁净,防止了未经处理的空气无序进入室内。在极端天气条件下可自动调节室外新风摄入量,有效降低室外污染物及高湿空气对室内环境的影响。
技术参数:
设备类别 | 双向流新风除湿一体机 | 噪音 | <45DB |
设备型号 | NLD-250E | 压缩机 | Embraco |
测试工况 | 30°C 80% | 制冷剂 | 环保R134A |
除湿能力 | 40L/天 | 换热器 | 亲水铝箔紫铜管 |
送风风量 | 500-670m3/h | 积水盘 | SUS304不锈钢 |
回风风量 | 0-335m3/h | 排水管径 | DN20 |
送风余压 | 150Pa | 过滤(选配) | 初效/中效/高效 |
新风量 | 250-670m3/h | 净化(选配) | UV杀菌/负离子 |
排风量 | 200m3/h | 新风口 | 150mm |
运行功率 | 650W | 回风口 | 150mm |
运行电流 | 3.3A | 送风口 | 150mm |
电压/频率 | 220V/50Hz | 排风口 | 150mm |
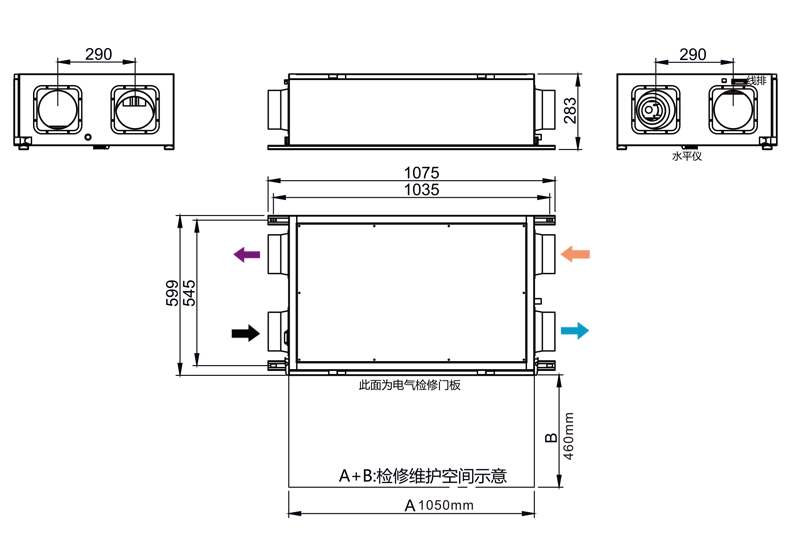
控制方式 | 全触摸LCD液晶 | 外形尺寸 | 1075*599*283mm |
防水/防电 | I类/IPX3 | 净重(kg) | 57kg |
外形尺寸图:

房经理 / 阮经理
手机:15558108181
手机:18058180003
工作时间 周一至周六
联系电话:0571-28120092
服务热线:400-8959-004