有实力的除湿机生产厂家!
免费咨询服务热线:400-8959-004

双向流新风除湿一体机 NLD-550E

•  恒氧  恒湿  洁净  节能

•  双向流结合技术,除湿新风同步进行

•  超薄均质透湿薄膜,高效传质导热

•  强力除菌的同时,0增量臭氧

•  高效吸音降噪材料,更轻音


产品介绍

       采用正压送风的形式,将室外空气净化、除湿处理后,通过送风管道送入各个房间,保证室内空气的干爽与洁净,防止了未经处理的空气无序进入室内。在极端天气条件下可自动调节室外新风摄入量,有效降低室外污染物及高湿空气对室内环境的影响。


   技术参数:

设备类别

双向流新风除湿一体机

噪音

<45DB

设备型号

NLD-550E

压缩机

Embraco

测试工况

30°C 80%

制冷剂

环保R134A

除湿能力

100L/天

换热器

亲水铝箔紫铜管

送风风量

1000-1200m3/h

积水盘

SUS304不锈钢

回风风量

570-1200m3/h

排水管径

DN20

送风余压

150Pa

过滤(选配)

初效/中效/高效

新风量

430-550m3/h

净化(选配)

UV杀菌/负离子

排风量

300m3/h

新风口

200mm

运行功率

1100W

回风口

200mm

运行电流

5A

送风口

200mm

电压/频率

220V/50Hz

排风口

200mm

控制方式

全触摸LCD液晶

外形尺寸

1330*749*325mm

防水/防电

I类/IPX3

净重(kg)

85kg


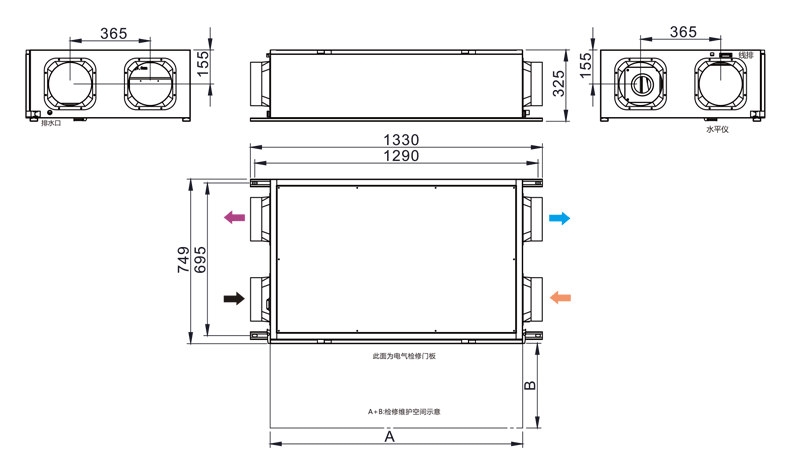
   外形尺寸图:

1584777658605663.png

标签:

在线客服
联系方式

房经理 / 阮经理

手机:15558108181

手机:18058180003

工作时间 周一至周六

联系电话:0571-28120092

服务热线:400-8959-004

线