双向流新风除湿机(全热交换型),除具备以上机型双向流新风换气、除湿、净化功能以外,还增加了具有热湿交换功能的能量回收装置,排风与新风在能量回收装置内进行热量交换,从而达到回收冷热量和湿度的目的,节约空调与供暖能耗。在极端天气下可自动调节室外新风摄入量,有效控制污染物及高湿空气对室内环境的影响。
技术参数:
设备类别 | 双向流全热交换新风一体机 | 噪音 | <45DB |
设备型号 | NLD-250EB | 压缩机 | Embraco/R134A |
测试工况 | 30°C 80% | 换热器 | 亲水铝箔紫铜管 |
除湿能力 | 40L/天 | 积水盘 | 304不锈钢 |
送风余压 | 150Pa | 排水管径 | DN20 |
风机类型 | 两档 | 过滤(选配) | 初效/中效/高效 |
送风风量 | 650-780m3/h | 净化(选配) | UV杀菌/负离子 |
新风量 | 180-250m3/h | 新风口 | 150mm |
回风风量 | 400-780m3/h | 回风口 | 150mm |
排风量 | 120m3/h | 送风口 | 150mm |
功率/电流 | 720W/3.2A | 排风口 | 150mm |
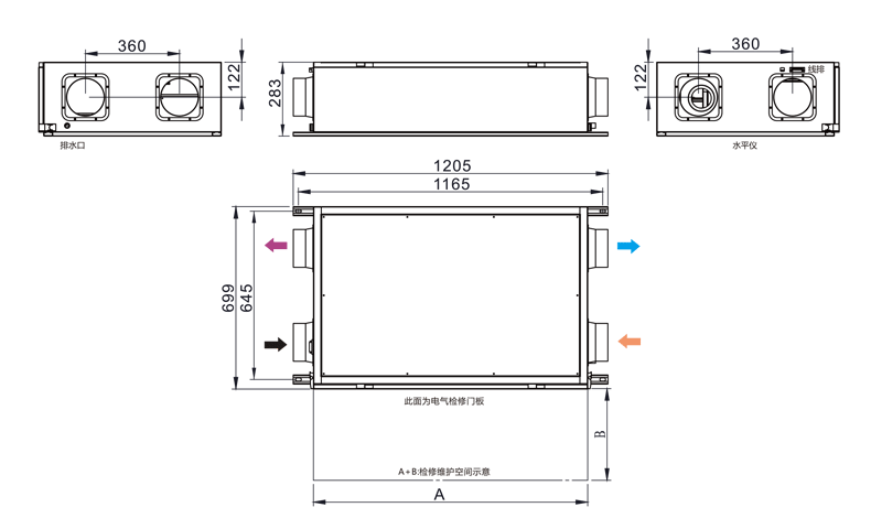
电压/频率 | 220V/50Hz | 外形尺寸 | 1205*699*283mm |
控制方式 | 全触摸LCD液晶 | 净重(kg) | 60kg |
防水/防电 | I类/IPX3 | A-mm/B-mm | 1050mm/460mm |
外形尺寸图:

房经理 / 阮经理
手机:15558108181
手机:18058180003
工作时间 周一至周六
联系电话:0571-28120092
服务热线:400-8959-004